Основна інформація
Тип документу
Довідка про огляд об'єкта
Реєстраційний номер в ЄДЕССБ
DO01:3616-4036-8950-6153
Версія документу
№1
Статус реєстрації
Зареєстровано (внесено реєстратором)
Статус документу
Діючий
Створено у відповідності до проектної документації/ДБН
Так
Достовірність відомостей
Так
Планова дата проведення огляду
27.11.2025
Фактична дата проведення огляду
27.11.2025
ПІБ особи, що буде проводити огляд
Бошко Ігор Емільович
Проектна документація
Реєстраційний номер
PD01:9631-4163-8271-9204 Зміни №4 №11-2020 від 2020-12-01 (видав ТОВАРИСТВО З ОБМЕЖЕНОЮ ВІДПОВІДАЛЬНІСТЮ "АТЕЛЬЄ АРХІТЕКТУРИ ПЛЮС") / Наявні експертизи: EX01:0265-5749-7291-7495
Проектна організація
ТОВАРИСТВО З ОБМЕЖЕНОЮ ВІДПОВІДАЛЬНІСТЮ "АТЕЛЬЄ АРХІТЕКТУРИ ПЛЮС" (20531946) Версія №1 Статус (поточна)
Назва об'єкта проектування
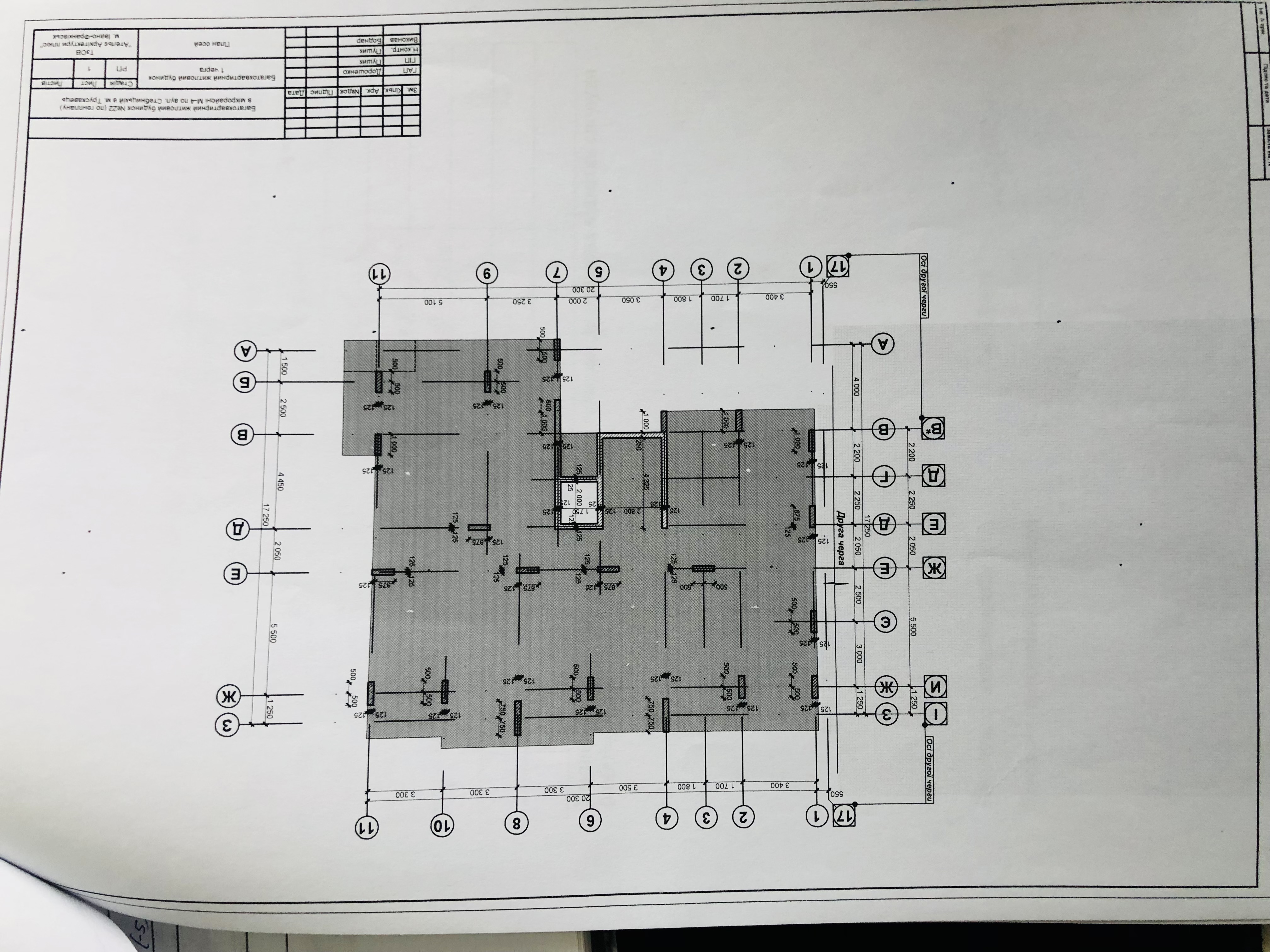
Будівництво багатоквартирного житлового будинку (мікрорайон М-4, будинок №22 по генплану) на землях Станильської сільської ради Дрогобицького району, вул.Стебницька, м.Трускавець, Львівської області
Перелік видів робіт
Відповідальні особи
| Посада | ПІБ |
|---|---|
| Начальник відділу | Бошко Ігор Емільович |
Об’єкти будівництва
| # | Назва об'єкта | Вид будівництва | Тип об'єкта | Ідентифікатор об'єкта | Енергетичний сертифікат | ТЕП |
|---|---|---|---|---|---|---|
Субпроєктувальники
Інформацію не зазначено
Затвердження проектної документації
Статус документу
Діючий
Тип затвердження
Дата затвердження
25.11.2025
Експертиза проекту
| Реєстраційний номер | Статус документа | Експертна організація | Сертифікований експерт | Тип | Номер експертизи | Тип висновку |
|---|---|---|---|---|---|---|
| EX01:0265-5749-7291-7495 | Діючий | ТОВ "Українська будівельно-технічна експертиза" (39190177) Версія №1 Статус (поточна) | Назарук Роман Мирославович (СІ- 01197, АЕ 004399, АЕ 004644, АЕ 004996, АТ 007097, АЕ 000328, АЕ 000811, АЕ 007204, АТ 008062, СІ- 00398 ) | щодо розгляду проектної документації на будівництво | 7-042-21ЕП/ІФ (від 03.02.2022) | Позитивний |
Дозвільний документ
Реєстраційний номер
Тип документа
Видача сертифіката про прийняття в експлуатацію закінчених будівництвом об’єктів
Чек-лист
ЧЕК-ЛИСТ за результатами виїзного огляду об’єкта будівництва на місцевості з фотофіксацією об’єкта під час прийняття в експлуатацію закінченого будівництвом об’єкта
Без категорії
| № | Назва показника | Значення показника |
|---|---|---|
| 1 | Проєкт будівництва стадії “робоча документація” або “робочий проєкт”, якщо розроблення в одну стадію | Відповідає |
| 2 | Проєкт організації будівництва | Відповідає |
| 3 | Проєкт виконання робіт/технологічна карта | Відповідає |
| 4 | Загальний журнал робіт | Відповідає |
| 5 | Журнал виконання робіт з монтажу будівельних конструкцій | Відповідає |
| 6 | Журнал виконання робіт із замонолічування монтажних стиків і вузлів | Не потребує |
| 7 | Журнал виконання монтажних з’єднань на болтах з контрольованим натягом | Не потребує |
| 8 | Журнал виконання зварювальних робіт | Не потребує |
| 9 | Журнал виконання монтажних з’єднань на болтах з контрольованим натягом | Не потребує |
| 10 | Журнал виконання антикорозійних робіт | Не потребує |
| 11 | Журнал виконання робіт з антикорозійного захисту зварних з’єднань | Не потребує |
| 12 | Журнал виконання робіт із занурення (забивки) паль | Не потребує |
| 13 | Журнал виконання робіт з улаштування буроін’єкційних паль | Не потребує |
| 14 | Журнал виконання робіт з улаштування буронабивних паль | Не потребує |
| 15 | Журнал виконання робіт із віброзанурення паль | Не потребує |
| 16 | Журнал виконання робіт з улаштування шпунтової огорожі | Не потребує |
| 17 | Журнал виконання бетонних робіт | Відповідає |
| 18 | Журнал виконання арматурних робіт | Відповідає |
| 19 | Журнал авторського нагляду | Відповідає |
| 20 | Журнал вхідного контролю конструкцій, виробів, матеріалів та устаткування | Відповідає |
Розділи