Основна інформація
Тип документу
Дозвільний документ
Реєстраційний номер в ЄДЕССБ
ЛВ122251125101
Версія документу
№1
Статус реєстрації
Зареєстровано (внесено реєстратором)
Статус документу
Діючий
Тип
Видача сертифіката про прийняття в експлуатацію закінчених будівництвом об’єктів
Орган, що видав
ТРУСКАВЕЦЬКА МІСЬКА РАДА (26230588) Версія №1 Статус (поточна)
Назва об’єкта
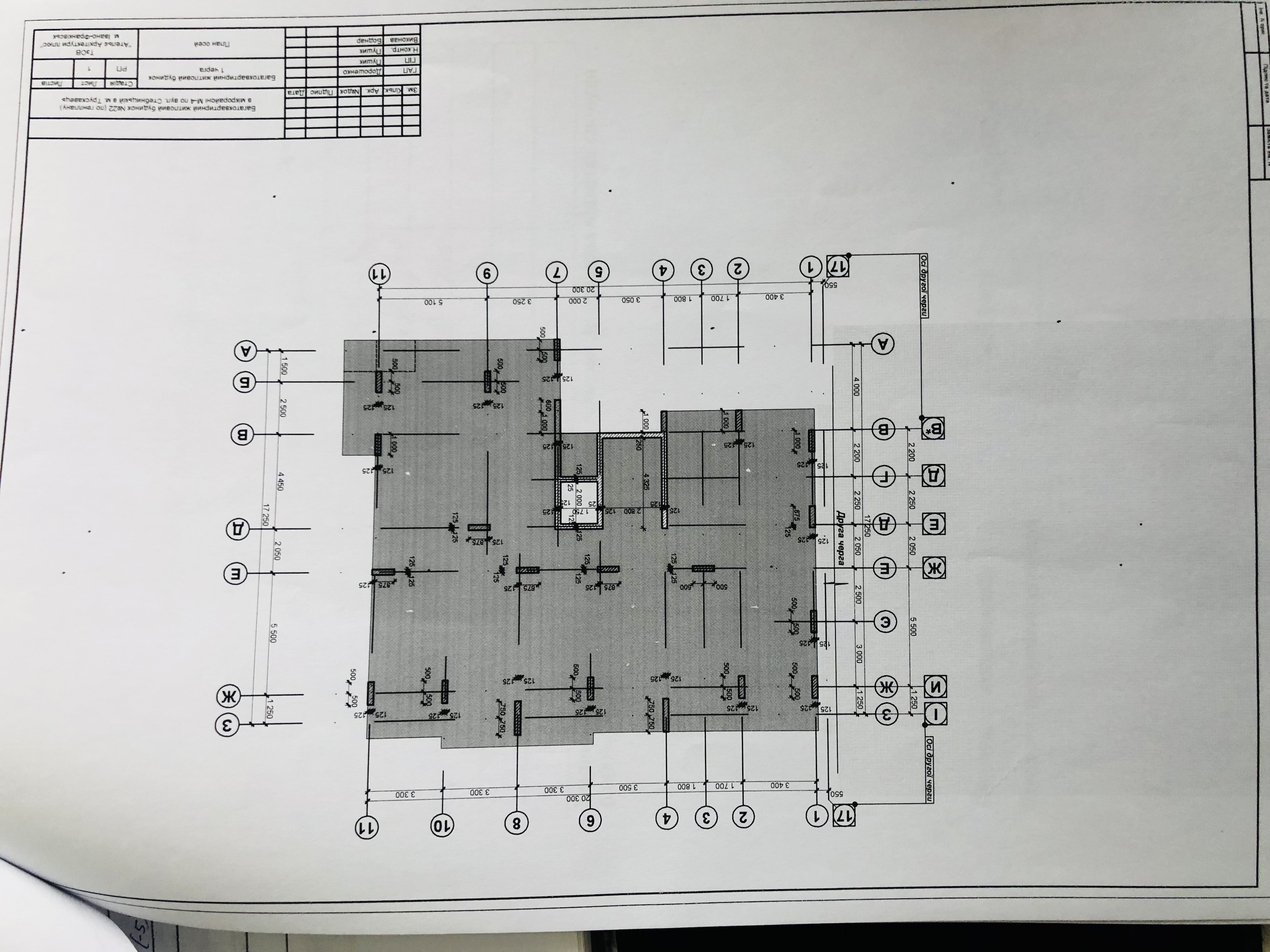
Будівництво багатоквартирного житлового будинку (мікрорайон М-4, будинок №22 по генплану) на землях Станильської сільської ради Дрогобицького району, вул.Стебницька, м.Трускавець, Львівської області
Клас наслідків
СС2
Форма подачі документа
Електронна (розглянуто)
Дата реєстрації в ЄДЕССБ
28.11.2025
Статус внесення плати за видачу сертифіката
Сертифікат сплачено
Наявність документів про непідтвердження відомостей
Інформацію не зазначено
Відомості про замовника
| Назва | Контакти | Місце реєстрації |
|---|---|---|
| КОМУНАЛЬНЕ ПІДПРИЄМСТВО "УПРАВЛІННЯ КАПІТАЛЬНОГО БУДІВНИЦТВА" ДРОГОБИЦЬКОЇ МІСЬКОЇ РАДИ | +38(032)-442-01-74, +38(032)-443-57-65 | УКРАЇНА, Львівська обл., Дрогобицький район, Дрогобицька територіальна громада, м. Дрогобич (станом на 01.01.2021), площа Ринок , б. 20 |
Замовники, які делегували свої повноваження
Інформацію не зазначено
Відомості про об'єкт
Вид будівництва
Нове будівництво
Назва об’єкта будівництва
Будівництво багатоквартирного житлового будинку (мікрорайон М-4, будинок №22 по генплану) на землях Станильської сільської ради Дрогобицького району, вул.Стебницька, м.Трускавець, Львівської області
Клас наслідків
СС2
Тип
Містобудівні умови та обмеження
Містобудівні умови та обмеження
MU01:7360-4154-6835-6678 №20-м/у від 2017-05-05 / Діючий (видав Управління містобудування, архітектури та землекористування ТРУСКАВЕЦЬКА МІСЬКА РАДА)
Спосіб будівництва
З залученням підрядника
Відомості про чергу/пусковий комплекс
Метод проектування: З чергами
| Номер черги |
|---|
| 1 |
Терміни будівництва
| Дата початку будівництва | Дата завершення будівництва | Строк введення об’єкта (черги, пускового комплексу) в експлуатацію |
|---|---|---|
| 09.06.2022 | 14.11.2025 |
Кошторисна вартість будівництва
Інформацію не зазначено
Пайова участь
Підстава для звільнення від сплати пайової участі
Пункт 13 розділу І Закону України «Про внесення змін до деяких законодавчих актів України щодо стимулювання інвестиційної діяльності в Україні» №132-IX від 20.09.2019 року
Місце розташування об'єкта будівництва та адреса
Індекс
82200
Адреса
Львівська обл., Дрогобицький район, Трускавецька територіальна громада, м. Трускавець (станом на 01.01.2021), вулиця Стебницька
Номер будинку
Б/Н
Містобудівні умови та обмеження
Документ
Реєстраційний номер
Номер документу
20-м/у
Назва органу, що видав
ТРУСКАВЕЦЬКА МІСЬКА РАДА (26230588) Версія №1 Статус (поточна)
Дата видачі
05.05.2017
Загальна інформація
Вид будівництва
Нове будівництво
Назва об’єкта будівництва, що повинна відображати вид будівництва та місце розташування об’єкта
Будівництво багатоквартирного житлового будинку (мікрорайон М-4, будинок №22 по генплану) на землях Станильської сільської ради Дрогобицького району, вул.Стебницька, м.Трускавець, Львівської області
Загальні вимоги
Гранично допустима висотність будинків, будівель та споруд у метрах
34.4
Максимально допустимий відсоток забудови земельної ділянки
35
Максимально допустима щільність населення в межах житлової забудови відповідної житлової одиниці (кварталу, мікрорайону)
820
Мінімально допустимі відстані від об’єкта, що проектується
| Назва обмеження | Відстань | Примітка |
|---|---|---|
| до існуючих будинків та споруд | 20 | Проектовану будівлю, а саме секцію №1 багатоквартирного житлового будинку розташувати на відстані 20,0м. від існуючого багатоквартирного житлового будинку по вул.Данилишиних,57 |
| до існуючих будинків та споруд | 31.5 | Проектовану будівлю, а саме секцію №1 багатоквартирного житлового будинку розташувати на відстані 31,50м. від існуючого багатоквартирного житлового будинку по вул.Данилишиних,55 |
| до існуючих будинків та споруд | 33.76 | Проектовану будівлю, а саме секцію №3 багатоквартирного житлового будинку розташувати на відстані 33,76м. від існуючого багатоквартирного житлового будинку по вул.Данилишиних,55 |
| до червоних ліній | 0 | Проектовану будівлю 3-х секційного багатоквартирного житлового будинку розташувати згідно погодженої схеми-генплану в глибині північної частини кварталу житлової забудови мікрорайону М-4 без порушення червоних ліній по вул.Данилишиних, які становлять — 25,0м. Будівництво багатоквартирного житлового будинку здійснювати у ІІІ-черги : І-черга — секція 1; - ІІ-черга — секція 2; - ІІІ-черга — секція 3. |
Планувальні обмеження
| Назва зони | Площа покриття | Примітка |
|---|---|---|
| інше | Проектування здійснювати з дотриманням вимог ДБН Б.2.2-12:2019 “Планування і забудова територій”. Планувальні обмеження відсутні |
Охоронні зони
| Назва зони | Площа покриття | Примітка |
|---|---|---|
| об’єктів існуючих інженерних мереж | Обов'язкове дотримання вимог щодо інженерних мереж згідно з Розділом 11 “Інженерна інфраструктура” підпунктом 11.5 “Розміщення інженерних мереж” ДБН Б.2.2-12:2019 “Планування і забудова територій”. При необхідності передбачити винесення існуючих мереж на нормативну відстань із зони будівництва |
Документ, що засвідчує право власності (користування) земельною ділянкою
Кадастровий номер: 4621287400:04:000:0034
Площа: 3.2759 га
Цільове призначення: 02.03 Для будівництва і обслуговування багатоквартирного житлового будинку
Відомості документу про право користування підтверджені ДРРП
Площа: 3.2759 га
Цільове призначення: 02.03 Для будівництва і обслуговування багатоквартирного житлового будинку
Відомості документу про право користування підтверджені ДРРП
Проектна документація
Код проєктної документації
Статус документа
Діючий
Дата розпорядчого документа
01.12.2020
Розробник
ТОВАРИСТВО З ОБМЕЖЕНОЮ ВІДПОВІДАЛЬНІСТЮ "АТЕЛЬЄ АРХІТЕКТУРИ ПЛЮС"(20531946)
Відомості про затвердження проектної документації замовником
Посада посадової особи
-
Назва розпорядчого документа
-
Номер розпорядчого документа
-
Дата розпорядчого документа
-
Відповідальні особи
| Посада | ПІб, Сертифікат | Найменування документа про призначення | Номер документа про призначення | Дата документа про призначення | Дорошенко Ярослав Миколайович (АА 003624, АА 000705, АА 003492) | Наказ | 11п-2020 | 01.11.2020 |
|---|
Відомості про технічний нагляд, що зазначений виключно в дозвільному документі
| ПІБ, сертифікат | Статус погодження |
|---|---|
| Процикевич Андрій Петрович (АТ 009014 ) | внесено замовником |
Документ про технічний нагляд, що пов'язаний з проектною документацією
| № | Реєстраційний номер | Статус реєстрації | Статус документа |
|---|---|---|---|
| 1 | TN01:4212-2245-5024-1809 | Діючий | Зареєстровано (внесено реєстратором) |
| Уповноважена особа | Клас наслідків об'єктів, на яких особа може здійснювати нагляд | Посада уповноваженої особи | Назва, номер, дата документа про призначення |
|---|---|---|---|
| Процикевич Андрій Петрович (АТ 005715, АТ 009014 ) | СС3 | технічний нагляд |
договір
23/10/25 23.10.2025 |
Відомості про авторський нагляд, що зазначений виключно в дозвільному документі
Документ про авторський нагляд, що пов'язаний з проектною документацією
| № | Реєстраційний номер | Статус реєстрації | Статус документа |
|---|---|---|---|
| 1 | AI01:3547-7189-8781-0082 | Діючий | Чернетка |
| № | Реєстраційний номер | Статус реєстрації | Статус документа |
|---|---|---|---|
| 2 | AI01:4235-2171-7112-1744 | Діючий | Зареєстровано (внесено реєстратором) |
| Наявність сертифікату | Уповноважена особа | Клас наслідків об'єктів, на яких особа може здійснювати нагляд | Посада уповноваженої особи | Назва, номер, дата документа про призначення |
|---|---|---|---|---|
| З сертифікатом | Дорошенко Ярослав Миколайович (АА 003624, АА 000705, АА 003492 ) | СС3 | ГАП |
Наказ
11а-2020 02.05.2022 |
Об’єкти будівництва
| # | Назва об'єкта | Вид будівництва | Тип об'єкта | Ідентифікатор об'єкта | Енергетичний сертифікат | ТЕП |
|---|---|---|---|---|---|---|
Експертиза проекту
| Реєстраційний номер | Статус документа | Експертна організація | Сертифікований експерт | Дата експертизи | Тип висновку |
|---|---|---|---|---|---|
| EX01:0265-5749-7291-7495 | Діючий | ТОВ "Українська будівельно-технічна експертиза" (39190177) Версія №1 Статус (поточна) | Назарук Роман Мирославович (СІ- 01197, АЕ 004399, АЕ 004644, АЕ 004996, АТ 007097, АЕ 000328, АЕ 000811, АЕ 007204, АТ 008062, СІ- 00398 ) | 03.02.2022 | Позитивний |
Відповідальні особи
Інформацію не зазначено
Технічний нагляд
Договір з генеральним підрядником
| Номер договору | Дата підписання договору | Організація Генеральний підрядник | Головний виконроб |
|---|---|---|---|
| Без номера 3764214530712798605 | 12.11.2025 | Товариство з обмеженою відповідальністю "АРС-ДІМ"(30610033) |
Субпідрядники
Інформацію не зазначено
Відповідальні за виконання робіт
| Посада | ПІб | Види виконаних робіт | Назва документа | Номер документа | Дата видачі |
|---|---|---|---|---|---|
| Виконроб | Градик Микола Тарасович | Повне виконання будівельних робіт багатоквартирного житлового будинку | Наказ | 10 | 01.07.2025 |
Технічна інвентаризація
Реєстраційний номер в ЄДЕССБ
TI01:6653-8966-9371-2660
Статус реєстрації документа в системі
Зареєстровано (внесено реєстратором)
Статус документа
Діючий
Розробник
НЕСТЕРІВСЬКИЙ ПЕТРО ВАСИЛЬОВИЧ Версія №1 Статус (поточна)
Відповідальна атестована особа
НЕСТЕРІВСЬКИЙ ПЕТРО ВАСИЛЬОВИЧ (АТ 009984, АТ 003833, ІТ 002215, АЕ 003297)
Відповідальні особи
| Посада | ПІб, Сертифікат | Найменування документа про призначення | Номер документа про призначення | Дата документа про призначення | Інженер сертифікований | НЕСТЕРІВСЬКИЙ ПЕТРО ВАСИЛЬОВИЧ (АТ 009984, АТ 003833, ІТ 002215, АЕ 003297) |
|---|
Об’єкти будівництва
| # | Назва об'єкта | Вид будівництва | Тип об'єкта | Ідентифікатор об'єкта | Енергетичний сертифікат | ТЕП |
|---|---|---|---|---|---|---|
Відомості про рішення по документу
Зареєстровано (внесено реєстратором)
Довідка про огляд, чек лист та фотофіксація
Реєстраційний номер
Чек-лист
ЧЕК-ЛИСТ за результатами виїзного огляду об’єкта будівництва на місцевості з фотофіксацією об’єкта під час прийняття в експлуатацію закінченого будівництвом об’єкта
Без категорії
| № | Назва показника | Значення показника |
|---|---|---|
| 1 | Проєкт будівництва стадії “робоча документація” або “робочий проєкт”, якщо розроблення в одну стадію | Відповідає |
| 2 | Проєкт організації будівництва | Відповідає |
| 3 | Проєкт виконання робіт/технологічна карта | Відповідає |
| 4 | Загальний журнал робіт | Відповідає |
| 5 | Журнал виконання робіт з монтажу будівельних конструкцій | Відповідає |
| 6 | Журнал виконання робіт із замонолічування монтажних стиків і вузлів | Не потребує |
| 7 | Журнал виконання монтажних з’єднань на болтах з контрольованим натягом | Не потребує |
| 8 | Журнал виконання зварювальних робіт | Не потребує |
| 9 | Журнал виконання монтажних з’єднань на болтах з контрольованим натягом | Не потребує |
| 10 | Журнал виконання антикорозійних робіт | Не потребує |
| 11 | Журнал виконання робіт з антикорозійного захисту зварних з’єднань | Не потребує |
| 12 | Журнал виконання робіт із занурення (забивки) паль | Не потребує |
| 13 | Журнал виконання робіт з улаштування буроін’єкційних паль | Не потребує |
| 14 | Журнал виконання робіт з улаштування буронабивних паль | Не потребує |
| 15 | Журнал виконання робіт із віброзанурення паль | Не потребує |
| 16 | Журнал виконання робіт з улаштування шпунтової огорожі | Не потребує |
| 17 | Журнал виконання бетонних робіт | Відповідає |
| 18 | Журнал виконання арматурних робіт | Відповідає |
| 19 | Журнал авторського нагляду | Відповідає |
| 20 | Журнал вхідного контролю конструкцій, виробів, матеріалів та устаткування | Відповідає |
Відомості про реєстрацію
Орган, що прийняв рішення
ТРУСКАВЕЦЬКА МІСЬКА РАДА (26230588) Версія №1 Статус (поточна)
Посадова особа органу
Начальник відділу ДАБК Трускавецької міської ради Бошко Ігор Емільович
Зміни в дозвільному документі
Інформацію не зазначено
Розділи